Skip to content
ECFE3270-D7AC-4D6E-8AAE-822F00238BF2
Created with sketchtool.
03-6839303
Menu
Home
About
Residence
Housing
Public
Public Relation
Show sub menu
+
News
Video
Contact Us
03-6839303
עב
03-6839303
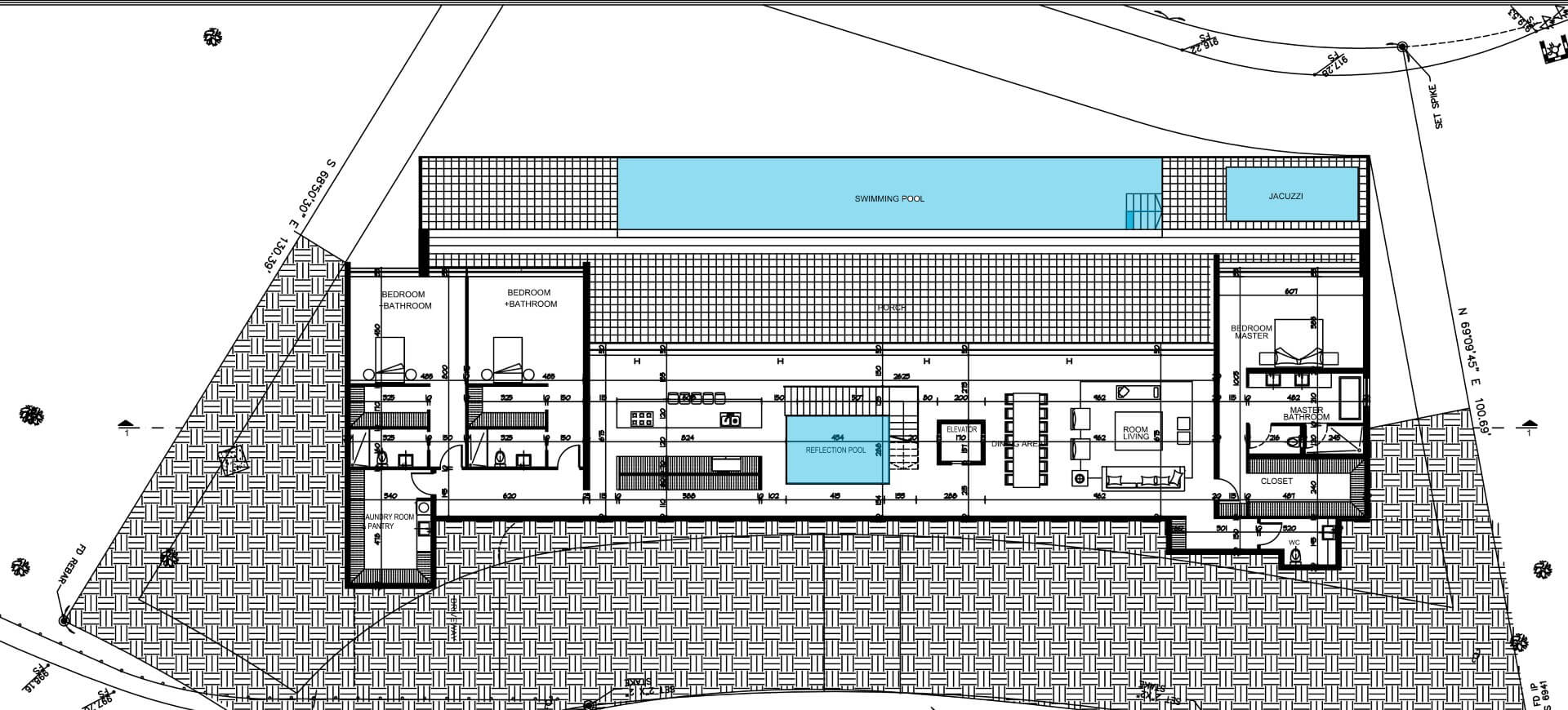
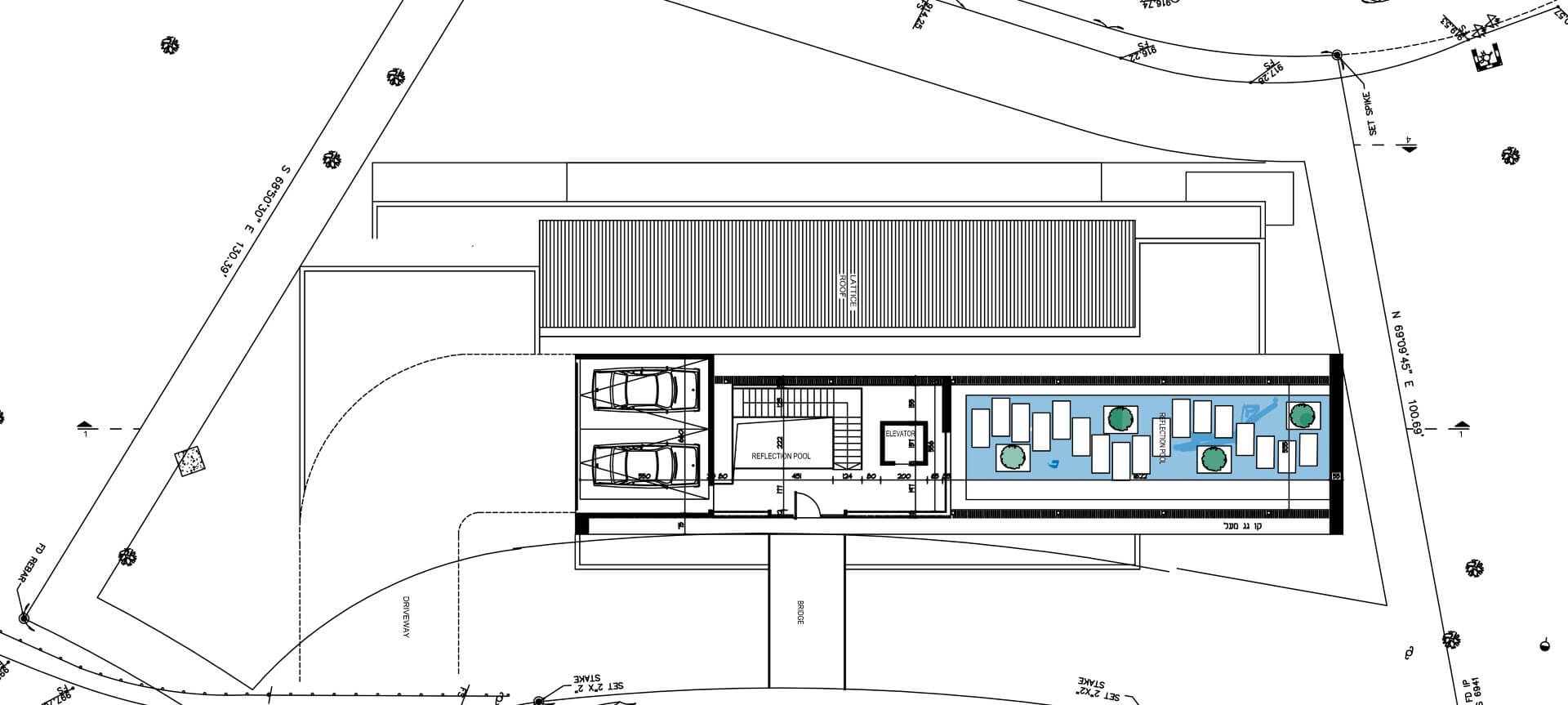
single family house in Hollywood, Los Angeles, U.S.A
שטח מגרש: 695 מ"רשטח בנוי: 240 מ"ר
MORE PROJECTS
D76C1C96-6C73-4060-BBFA-49B801569A43
Created with sketchtool.
D76C1C96-6C73-4060-BBFA-49B801569A43
Created with sketchtool.
VESTIA house
. Completion Dete: 2026. Plot size: 10;000 sqm. Built size: 1100 sqm. Location: Sharsheret.
THRESHOLD House
Plot size: 2938 sqm Built area: 670 sqm location:Beit Nakufa Completion Date: 2025
VECTOR house
Plot size: 600 sqm Built area: 300 sqm location:Caesarea Completion Date: 2025
MONARCH House
Plot size: 1000 sqm Built area: 350 sqm location:Macabim Reut Completion Date: 2025
MYTHERA House
Plot size: 4000 sqm Built area: 500 sqm location: Savion Completion Date: 2024
OBSIDIAN house
Plot size: 630 sqm Built area: 400 sqm location:Caesarea Completion Date: 2022
STRATUM House
Plot size: 813 sqm Built area:530 sqm location:Afula Completion Date: 2025
ATARIA house
Plot size: 1000 sqm Built area: 236 sqm location: Emonim Completion Date: 2025
AXIS House
Plot size: 1035 sqm Built area: 300 sqm location:Bat Chen Completion Date: 2025
TERRAN house
Plot size: 780 sqm Built area: 530 sqm location:Aseret Completion Date: unde construction
LIMINAL house
Plot size: 4000m² Built area: 400 m² for each house location: Tel Aviv Completion Date: 2021
AERIS house
Plot size: 680 sqm Built area: 300 sqm location: Savion Completion Date: under construction
AURA house
Plot size: 1500 sqm Built area: 745 sqm location: Jerusalem Completion Date: 2024
INNVERA house
Plot size: 2000 sqm Built area: 550 sqm location: Bizaron Completion Date: under construction
JAWS house
Plot size: 500 sqm Built area: 350 sqm location: Irus Completion Date: 2026
LUMA house
Plot size: 23,000 sqm Built area: 500 sqm location: Ein Ayala Completion Date: 2018
VERDANT SANCTUARY house
Plot size: 4000 sqm Built area: 560 sqm location: Ramat Gan Completion Date: 2017
CADENCE house
Plot size: 500 sqm Built area: 270 sqm location: Herzlia Pituach Completion Date: under construction
APERTURE house
Plot size: 566 sqm Built area: 400 sqm location: Tel-Aviv Completion Date: 2023
INCISION house
Plot size: 630 sqm Built area: 400 sqm location: Caesarea Completion Date: 2022
VEIL house
Plot size: 500 sqm Built area: 350 sqm location: Rishon le Zion Completion Date: 2023
MALHA RIDGE house
Plot size: 800 sqm Built area: 600 sqm location:Jerusalem Completion Date: unde construction
SERENITY RIDGE house
Plot size: 20000 sqm Built area: 600 sqm location: Heifa Completion Date: 2020
UFO House
Plot size: 1000 m² Built area: 700 m² Completion Date: 2020
SANCTUM house
Plot size: 1040 sqm Built area: 400 sqm location: Israel Completion Date: 2022
EAVE house
Plot size: 600sqm Built area: 280 sqm location: Omer Completion Date: 2022
Gelerenter House
Plot size:500 m² Built area: 300 m² location: Irus Completion Date: 2021
P House
Plot size: 900 m² Built area: 700 m² location: Tel Aviv, Zahala Completion Date: under constraction
EQUILIBRIUM house
Plot size: 10,000 sqm Built area: 540 sqm location: Galia Completion Date: 2023
Konrad House
Plot size:800m² Built area: 450 m² location: Herzliya Pituah Completion Date: under planning
E House
Plot size: 22000 m²Built area: 1000 m²Completion Date: in progress
Folded House
Plot size:500 m² Built area: 300 m² location: Yad Binyamin Completion Date: under construction
Horn House
Plot size: 500 m² Built area: 300 m² location: Kokhav Michael Completion Date: under constraction
J Stone House
Plot size: 8000 m² Built area: 500 m² Completion Date: 2017
Striation House
Plot size: 12000 m² Built area: 7500 m² location: Emonim Completion Date: 2014
Dvir House
Plot size:500m² Built area: 300 m² location: Tel Aviv area Completion Date: under construction
Shahf House
Plot size:500 m² Built area: 365 m² Completion Date: 2020 location: Ramat Hshron west
The Clear House
Plot size: 327 m² Built area: 170 m² location: Reshon Lezion Completion Date: 2020
Milshtain House
Plot size: 500 m² Built area: 300 m² location: Jerusalem Area Completion Date: under constraction
DZ House
Plot size: 500 m² Built area: 350 m² Completion Date: 2019
Moran House
Plot size: 1800 m² Built area: 687 m² location: Mazkeret Batya Completion Date: under constraction
AG House
Plot size: 600 m² Built area: 270 m² Completion Date: under construction
HM House
שטח מגרש: 500 מ"רשטח בנוי: 300 מ"רמיקום: ראשל:צשלב ביצוע
Fairy tale House
Plot size:8000 m² Built area: 2800 m² location: Jerusalem Mountains Completion Date: under construction
Eliv House
Plot size: 1000 m² Built area: 400 m² location: Shfela Completion Date: under constraction
AS House
Plot size: 1300 m²Built area: 480 m²Completion Date: 2019
Dvir House
Plot size: 500 m² Built area: 300 m² location: Tel Aviv Completion Date: under constraction
FIFTH house
Plot size: 930 sqm Built area: 366 sqm location: Poria Eilit Completion Date: 2021
Zebra Zen House
Plot size:650m² Built area: 360 m² location: Rishon le Zion Completion Date: 2018
FRAME house
Plot size: 940 sqm Built area: 310 sqm location:hofit Completion Date: 2022
Oasis House
Plot size:2500 m² Built area: 558 m² location: Western Negev Completion Date: under construction
The Liner House
Plot size:500 m² Built area: 300 m² location: Shoam Completion Date: under construction
Reter House
Plot size: 800 m² Built area: 260 m² location: Savion Completion Date: under constraction
E+F House
Plot size: 500 m² Built area: 300 m² location: Iros Completion Date: under constraction
MR House
Plot size:468 m² Built area: 300 m² location: Rishon le Zion Completion Date: 2020
W Appartment
דירה במגדל W PRIME שטח בנוי: 140 מ"ר.מיקום: תל אביבסיום בנייה: 2017
Han House
Plot size:490 m² Built area: 300 m² location: Tel Aviv Completion Date: 2021
Floating Box House
Plot size:500 m² Built area: 300 m² location: Gedera Completion Date: 2020
Swiss House
Plot size:500 m² Built area: 300 m² location: Iros Completion Date: 2021
Visor House
Plot size: 502 m² Built area: 340 m² Completion Date: 2017
K House
Plot size:500 m² Built area: 360 m² location:Shron area Completion Date: 2015
The Lace House
Plot size: 500 m² Built area: 300 m² location: Tel Aviv Completion Date: 2020
Pinhas House
Plot size: 371 m² Built area: 290 m² location:Rishon le Zion Completion Date: under constraction
The Hidden House
Plot size:386 m² Built area: 280 m² location: Rishon le Zion Completion Date: 2014
M House
Plot size:351 m² Built area: 300 m² location: Tel Aviv Completion Date: 2013
Peeking House
Plot size:600 m² Built area: 320 m² each unit location: Rishon le Zion Completion Date: 2019
TD House
Plot size: 4000 m² Built area: 400 m² location: Yesud HaMa'ala Completion Date: under constraction
Ovi – Void House
Plot size:600 m² Built area: 300 m² location: Caesarea Completion Date:2017
Pola House
Plot size: 500m² Built area: 340 m² location: Iros Completion Date: 2019
Kaspi House
Plot size: 175 m² Built area: 408 m² location: Neve Zedek. Tel Aviv Completion Date: 2016
Domino House
Plot size: 721 m² Built area: 380 m² location: Caesarea Completion Date: 2020
K+N House
Plot size: 300 m² Built area: 280 m² location: Kiryat Ono Completion Date: 2013
TG House
Plot size: 500 m² Built area: 309 m² location: Savion Completion Date: 2019
The Emmental House
Plot size: 500 m² Built area: 320 m² location: Shfela Completion Date: 2021
Karnizi House
Plot size: 1000 m² Built area: 438 m² location: Ramat Gan Completion Date: 2011
Galilee House
Plot size:742 m² Built area: 300 m² location: Kineret Completion Date: 2017
The Cube House
Plot size:500 m² Built area: 420 m² location: Ashdod Completion Date: 2017
MARZ House
Plot size: 650 m² Built area: 300 m² location: Rishon le Zion Completion Date: 2018
S House
Plot size:500 m² Built area: 300 m² location: Gedera Completion Date: 2016
D House
Plot size:500 m² Built area: 320 m² location: Savion Completion Date: 2012
Hofit House
Plot size: 8000 sqm Built area: 600 sqm location: Hofit Completion Date: 2018
Z House
Plot size:1500 m² Built area: 500 m² location: Shron area Completion Date: 2012
B House
Plot size:500 m² Built area: 300 m² location: Iros Completion Date: 2016
GB House
Plot size:500 m² Built area: 235 m² location:Shfela Completion Date: 2017
ELM House
Plot size:500 m² Built area: 400 m² location: Gedera Completion Date: 2019
Folding House
Plot size:250 m² Built area: 280 m² location: Reshon Le Zion Completion Date: 2018
ZH House
Plot size:340 m² Built area: 300 m² location:Rishon le Zion Completion Date: 2015
MZH House
Plot size: 250 m² Built area: 290 m² location: Kiryat Ono Completion Date: 2020
R House
Plot size:600 m² Built area: 300 m² location: Caesarea Completion Date: 2017
DO House
Plot size:500 m² Built area: 300 m² location: Savion Completion Date: 2013
SM House
Plot size:500 m² Built area: 310 m² location: Savion Completion Date: 2013
Private house in Hollywood, U.S.A
Plot size: 695 m² Built area: 240 m² Completion Date: in progress
Tsofit House
Plot size: 8000 m² Built area: 600 m² Completion Date: in progress
Z+F+R House
Plot size: 673m² Built area: 185 m² for each house location: Rehovot Completion Date: 2018
Sol House
Plot size:325 m² Built area: 280 m² location:Petah Tiqva Completion Date: 2015
Yakum House
Plot size:353 m² Built area: 160 m² location: Yakum Completion Date: 2012
Gamliel House
שטח מגרש: 1300 מ"רשטח בנוי: 580 מ"רסיום בניה: 2008
G+K House
Plot size:3000 m² Built area: 230 m² location: Nir Israel Completion Date: 2000
Dekel House
Plot size:556 m² Built area: 450 m² location: Reshon Le Zion Completion Date: 2015
Leren House
שטח מגרש: 500 מ"רשטח בנוי: 300 מ"רסיום בניה: 2006
BN House
Plot size:390 m² Built area: 265 m² location: Herzlia Completion Date: 2012
B+H House
שטח מגרש: 700 מ"רשטח בנוי: 850 מ"רסיום בנייה: 2013
Golden House
שטח בניה: 280 מ"רסיום בניה: 2006
DN Duplex
שטח מגרש: 570 מ"רשטח בנוי: 140 מ"ר
Tikva House
Plot size:1098 m² Built area: 480 m² location: Ramat Hasharon Completion Date: 2011
Ben House
שטח מגרש: 800 מ"רשטח בנוי: 350 מ"רסיום בניה: 2005
Contact Us
Close
Full Name*
Phone*
Email*
How can we help?
BUSY?
let us help you get things done.